Overview
Shop and Further Retail Area on 1st Floor – Approx 3,994 sq ft (371 sqm) - To Let on New Lease
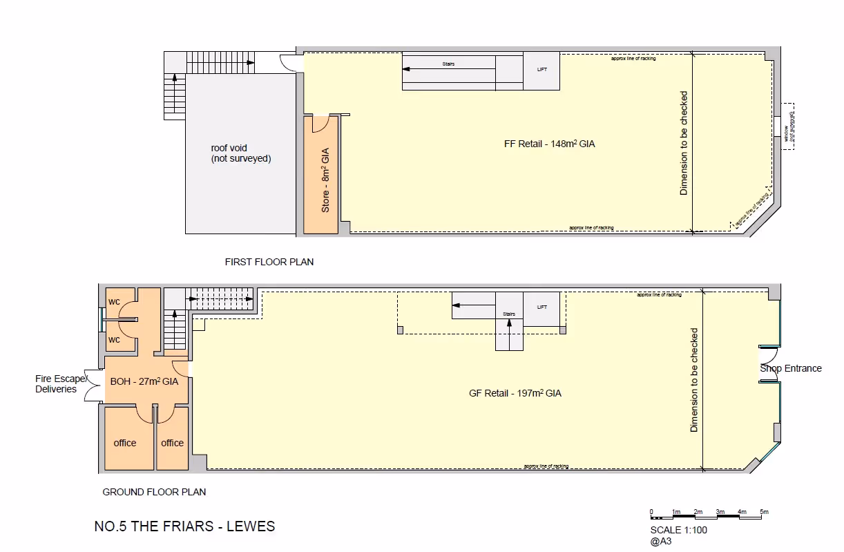
The premises forms part of an attractive and highly prominent terraced block of four units built in the late 1990s, occupying a prime position on the High Street known as ‘The Friars’. The Shop has Ground Floor and 1st Floor Sales with Rear Loading Bay (NB: for Loading/ Unloading Only, with no private parking for staff cars). The Ground Floor offers rear access, Office and 2 x WCs.
There is a Convenient Pay & Display Public Car Park in Friars Walk behind the Shop off Court Road, which has around 78 spaces, along with a few parking spaces on Friars Walk itself, allowing up to 2 hours free parking.
Size
Amenities
Location
Lewes is an attractive popular Tourist Destination and Historic Market Town in East Sussex, lying in a gap through the South Downs, carved by the River Ouse and is known for its array of Antique Centres, Lewes Castle and Anne of Cleeves House.
Lewes is a highly affluent Town with a population of 100,166 in the Lewes District. The Town provides a diverse mix of national and independent retailers, including Waitrose, Waterstones and Bill’s Restaurant to name a few, and is also home to Harveys Brewery and East Sussex County Council.
It is approximately 7 miles north of Newhaven, approximately 7 miles north‑west of Brighton and 57 miles south of London. It also boasts a Mainline Railway Station on the East Coastway Line, connecting it to Brighton, Eastbourne, London and other coastal and inland routes.
The A27 trunk road bypasses Lewes to the south, with the A26 passing through the Town, linking Newhaven to Maidstone in Kent.
Rent
Offers are invited in the region of £80,000 per annum exclusive of Rates and all other outgoings relating to the Property.
Business Rates
According to the Valuation Office website the premises are described as:
Shop and premises
Future Rateable Value from April 2026 - £70,500
VAT Details
VAT is applicable to the Rent and Service Charge
Legal
Landlord’s Legal Fee Contribution: Incoming Tenant to make a contribution in the fixed amount of £2,500 (no VAT) towards the Landlord’s Legal Costs.
Terms
Flexible terms available with the Property is to be held on a Full Repairing and Insuring Lease with terms to be agreed and subject to periodic Rent Reviews.
Viewing by Appointment Only




















