Overview
Former Children's Nursery Building and Car Park – 0.27 Acres - Strictly by Appt Only
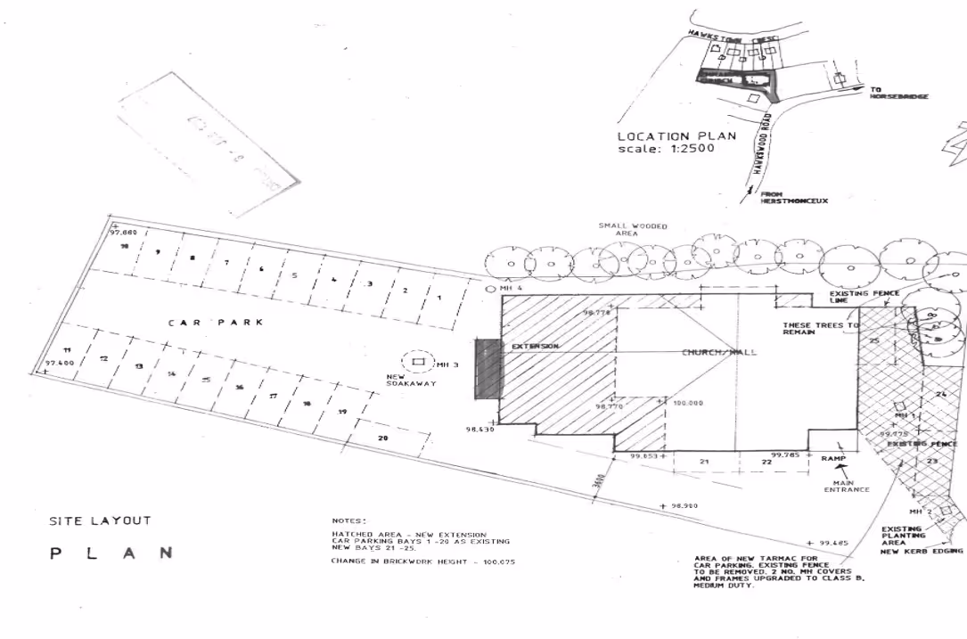
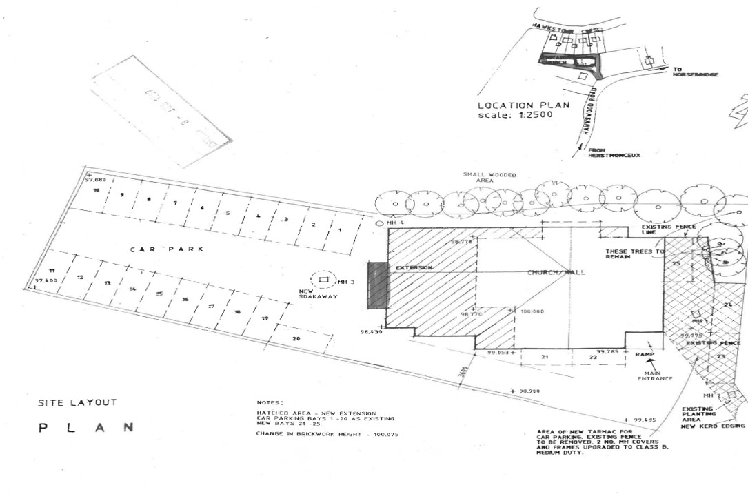
The premises comprise a single storey brick and block-built building under a pitched tiled roof. There is also a limited height Lower Ground Stores area at the rear. The building sits within a site area of 0.27 acres access via a shared drive linking to Hawkswood Road. Internally the premises are largely open plan with various rooms, including Kitchen and WCs.
Amenities include fully fitted kitchen, 3 x WCs, LED lighting, large open plan hall, various sized rooms and storage facilities . Externally there is a substantial tarmacked Car Park for 20+ vehicles, turning area and enclosed Garden Play Area. The premises were original built for Church purposes, but the main use for the last 15 years has been as a Children’s Nursery.
Size
Amenities
Location
The Site is located on the northern peripheral of Hailsham Town, on the south side of Hawkswood Road (A271 Hailsham to Hastings arterial link). The site is set back from the road accessed via a shared service road with the neighbouring residential bungalow. The area is predominately made up of residential properties with several schools and Hailsham Town Centre close by.
Rent
The Vendors may consider Letting the Property to a strong Tenant with existing business in place, and in this regard the Rent would be £30,000 per annum with Lease Terms to be agreed.
Business Rates
Community Centre & Premises
Rateable Value: £10,250
The property qualifies for 100% Small Business Rates Relief (STC)
VAT Details
VAT is not applicable to this transaction
Legal
Each party is to be responsible for their own legal fees
Terms
Offers are invited in excess of £325,000 for the freehold with vacant possession. Subject to Planning offers maybe considered on an individual basis.
Planning
The premises are suitable for a variety of Uses/Development subject to Planning.
The site has been used for E Class Nursery for the last 15 years and if required, an application for a Certificate of Lawful Use can be made.











